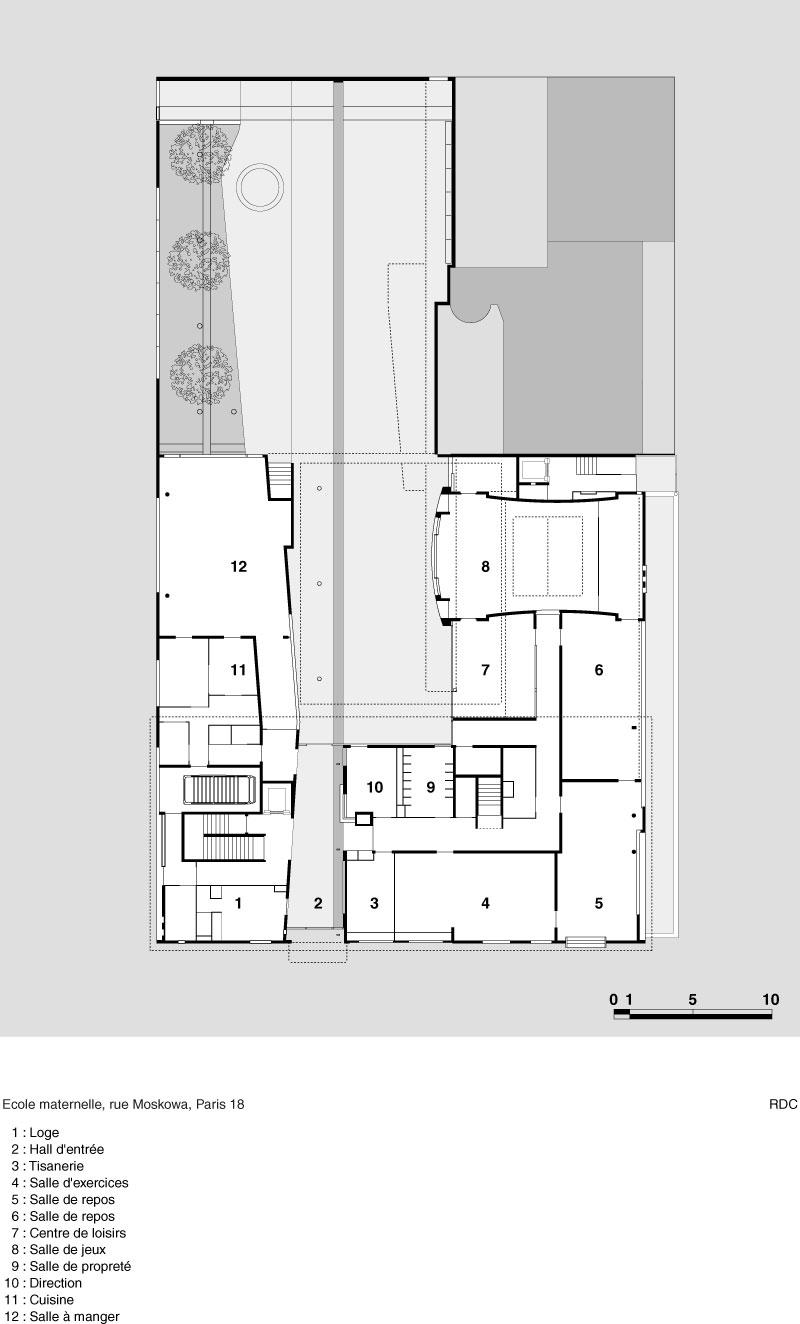
MOSKOWA

ÉCOLE MATERNELLE