FRÉDÉRIC BOREL ARCHITECTE
.
projets
logements
équipements
projets urbains
portrait
Agence
actualités
Contact
Accueil
Projets
logements
projets urbains
équipements
Agence
Portrait
Actualités
Contact
Équipements
logements
Projets urbains
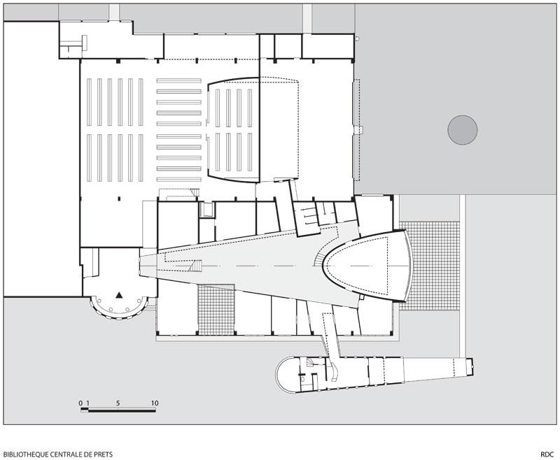
ANNECY
BIBLIOTHÈQUE CENTRALE DE PRÊTS
Previous
Next
Previous
Next